|
|
能代市のアパート・貸家・土地・中古住宅の不動産情報はお気軽にお問い合わせください! |
| | サイトマップ | お問い合わせ | |
| 取扱番号 | h-120 | ![]()
|
|---|---|---|
| 所在地 | 能代市字昇平岱 | |
| 交 通 | 秋北バス芝童森バス停 徒歩7分
五能線能代駅 徒歩35分 | |
| 構 造 | 木造亜鉛メッキ鋼板葺 平屋建
不詳年月日新築、平成12年改築 | |
| 価 格 | 1,450万円(税込) | |
| 土地面積 | 790. m2(238.97坪) | |
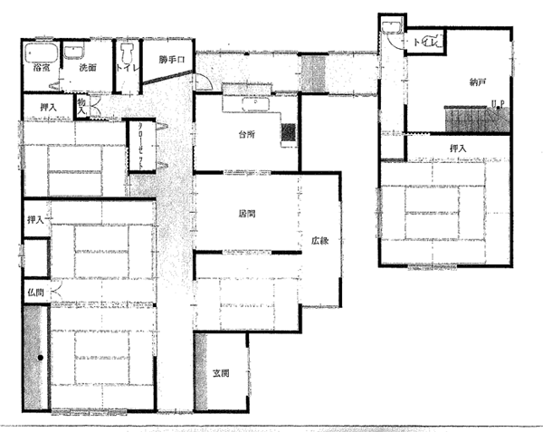
| 建物面積 | 約160.77m2(48.63坪) ※建物未登記の為 現況面積です。 | |
| 用 途 | 第一種中高層住居専用地域、準工業地域 | |
| 学 区 | 西小、一中 | |
| 建ペイ率/ 容積率 | 60% / 200% | |
| 設備有り | 上下水道引き込み済み ※現在は合併浄化槽 | |
| 取引態様 | 仲介 | |
| その他 | 敷地内未登記倉庫有り 約171.61㎡(51.91坪) | |
| 【間取図】 | ||
| ||
| 【地 図】 | ||